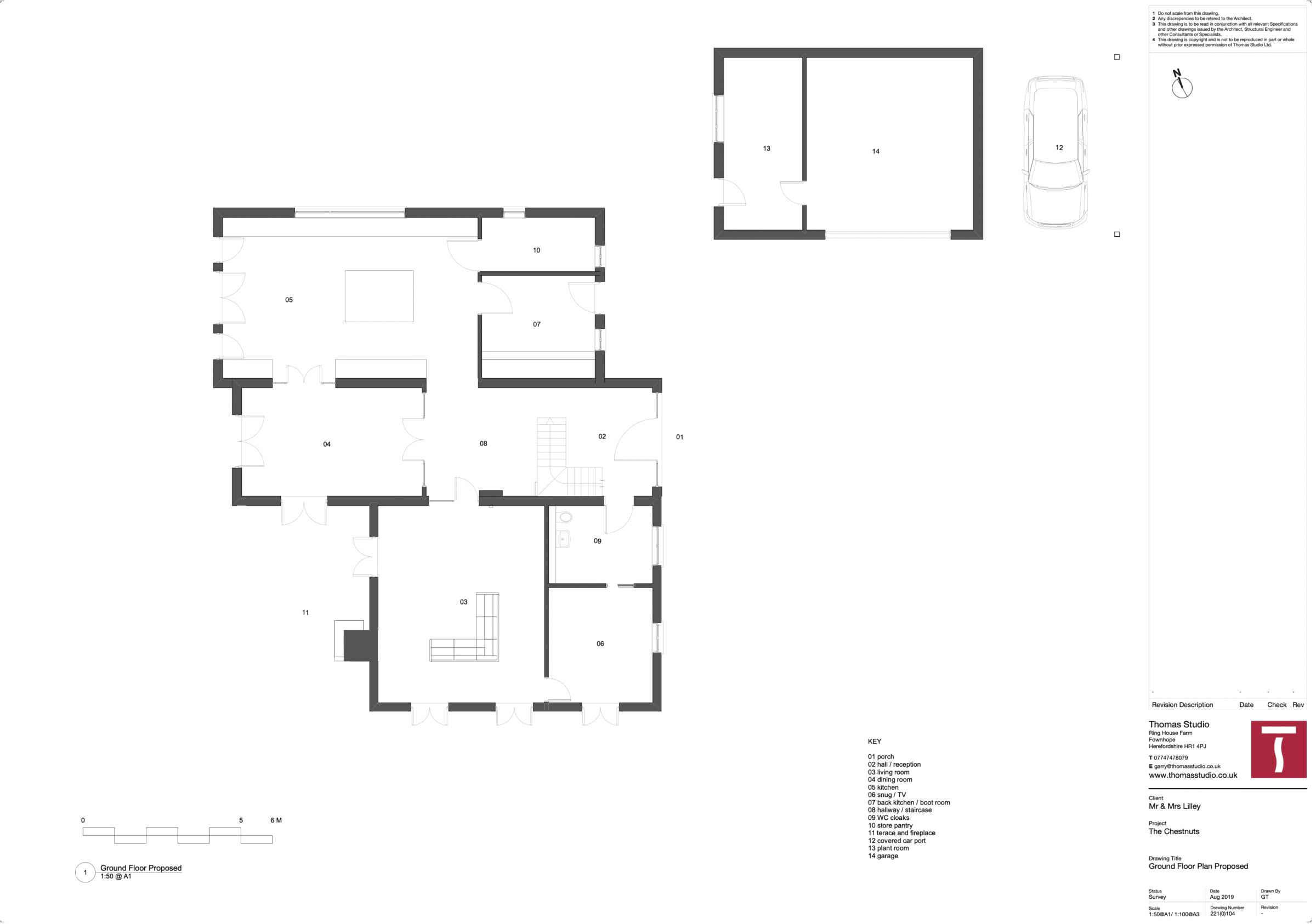
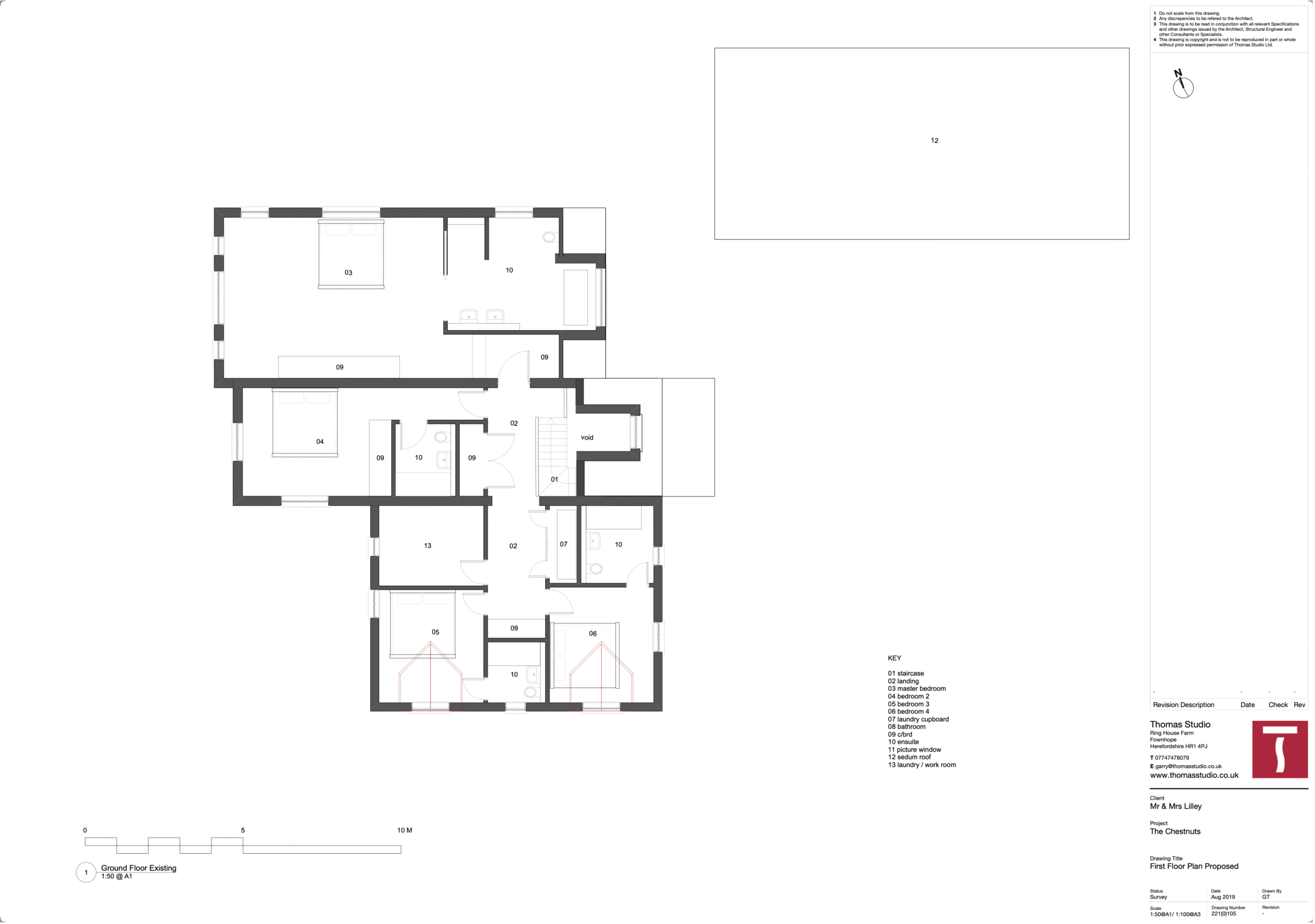
Strategic Project Review – Replacement Dwelling at The Chestnuts – Checkley, Herefordshire
Following detailed cost analysis and construction planning with quantity surveyor John Crooks, Richard and Nicola have made the strategic decision to pursue a complete replacement dwelling rather than conversion of the existing Victorian cottage.
This fundamental shift is driven by three key factors:
Thermal Efficiency: Achieving Passivehaus-standard performance is simply not possible with the existing solid brick construction and solid floor structure. A new-build approach allows us to create a truly low-energy home from the ground up.
Long-term Value: A purpose-designed replacement dwelling offers superior performance, lower running costs, and enhanced living quality for decades to come.
VAT Zero-Rating: New-build dwellings benefit from VAT zero-rating, delivering substantial cost savings compared to standard-rated refurbishment work. This makes the replacement dwelling financially viable.
This decision requires new planning applications and a complete redesign, but the benefits in terms of energy performance, comfort and long-term value make this the right approach for this exceptional site.







