Planning Submission – Malvern Hills
Planning application 20/00190/FUL has been submitted to Malvern Hills District Council for the change of use from A2 office and B8 storage to a single dwelling (C3), alongside replacement windows and a new parking area.
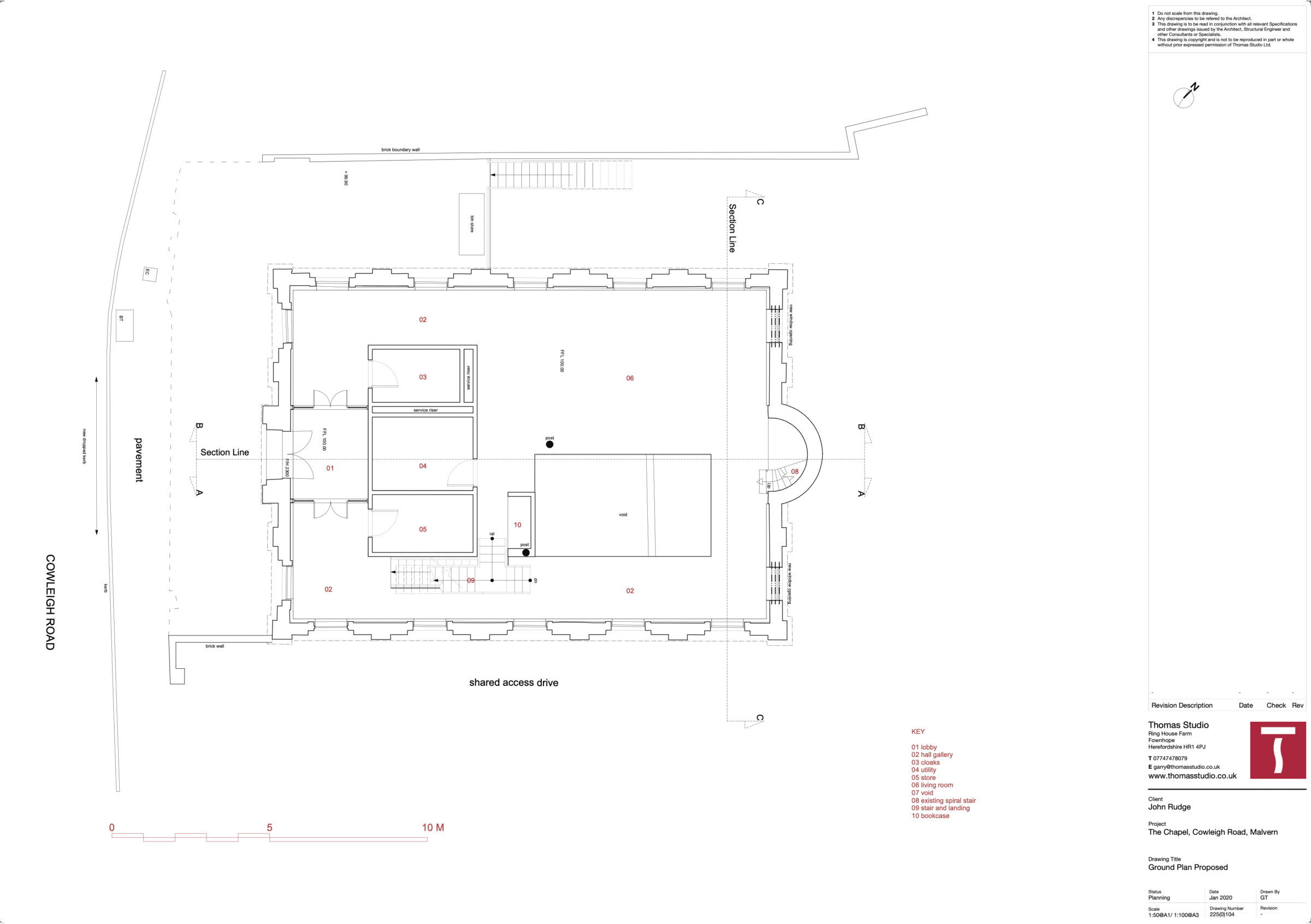
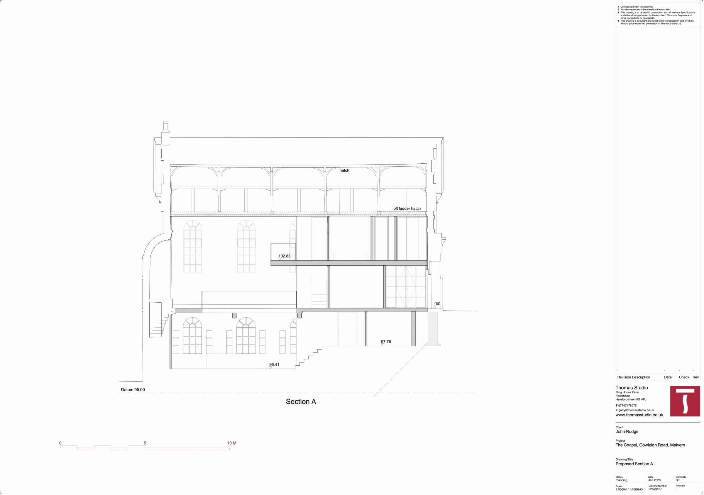
As a non-designated heritage asset, The Old Chapel triggers extensive heritage policy requirements under Chapter 16 of the National Planning Policy Framework. Our design strategy centres on ‘full reversibility’—ensuring that interventions can be removed in future without permanent harm to the historic fabric.
Key design proposals include:
- Retention and repair of existing Crittall-style windows throughout
- Installation of a new suspended insulated ceiling to reduce heated volume and improve thermal performance
- Preservation of the existing timber staircase and arched niche within the northeast elevation
- Introduction of a mezzanine level to better utilise the generous ceiling heights
- External works including removal of redundant flues and SVPs, and creation of appropriate parking
The application is supported by a detailed Supporting Statement addressing heritage impacts, energy strategy, and design rationale.





